



保溫夾套籃式過濾器
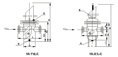
SBL型 法蘭連接直通平底籃式過濾器
| 公稱直徑 ND | φ | L | H1 | H2 | H | 排放口“ B” | 有效過濾面積 (m2) |
| 25 | 76 | 220 | 160 | 260 | 480 | R1/2″ | 0.003619 |
| 32 | 89 | 220 | 165 | 270 | 495 | R1/2″ | 0.003619 |
| 40 | 108 | 280 | 180 | 300 | 550 | R1/2″ | 0.005718 |
| 50 | 133 | 280 | 180 | 300 | 550 | R1/2″ | 0.005718 |
| 65 | 133 | 330 | 220 | 350 | 650 | R1/2″ | 0.009613 |
| 80 | 159 | 340 | 260 | 400 | 740 | R1/2″ | 0.01539 |
| 100 | 219 | 420 | 310 | 470 | 680 | R1/2″ | 0.02464 |
| 150 | 273 | 500 | 430 | 620 | 1175 | R3/4″ | 0.04866 |
| 200 | 325 | 560 | 530 | 780 | 1495 | R3/4″ | 0.07858 |
| 250 | 426 | 660 | 640 | 930 | 1810 | R3/4″ | 0.12005 |
| 300 | 478 | 750 | 840 | 1200 | 2310 | R3/4″ | 0.16537 |
SBL型 法蘭連接直通封頭籃式過濾器
公稱直徑 DN
Do
n-y
φ
L
H1
H2
H3
H
排放口“ B ”
有效過濾面積 (m2)
200
290
4-16
325
560
540
230
1070
1875
R3/4″
0.07858
250
375
4-16
426
660
650
270
1220
2170
R3/4″
0.12065
300
420
4-16
480
750
860
320
1420
2670
R3/4″
0.16537
350
460
4-16
500
800
1010
370
1680
3085
R1″
0.2225
400
500
4-16
550
840
1150
400
1850
3445
R1″
0.2916
450
550
4-16
600
960
1310
440
2050
3810
R1″
0.3642
500
640
4-16
700
1080
1440
470
2210
4145
R1″
0.4587
.jpg)